Description
NOW SOLD
Unit 2 is part of a group of 3 properties at the south of the site. Accessed via a shared drive from Derbyshire Lane, this part of the site is heavily wooded with spectacular views across to the Moors.
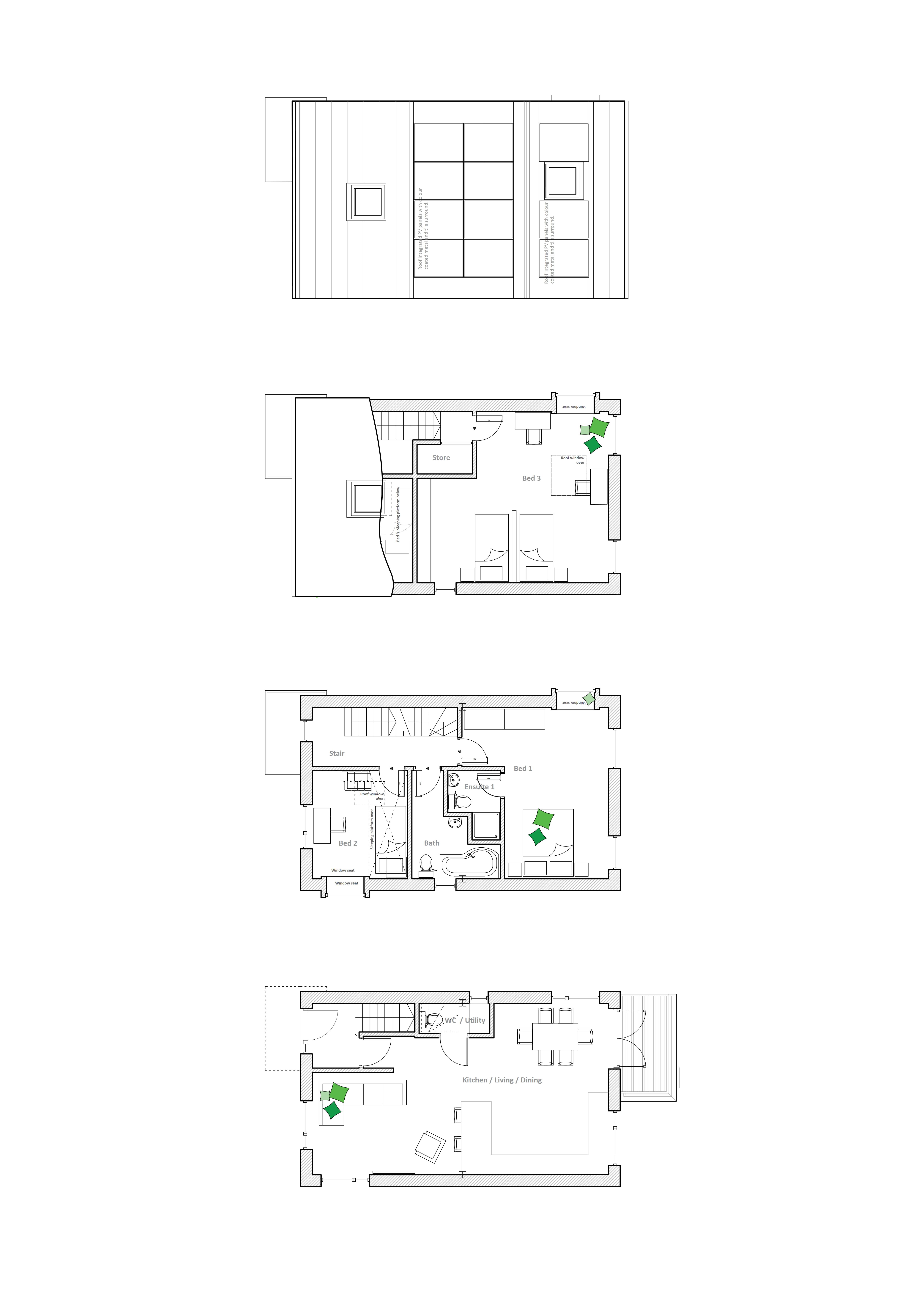
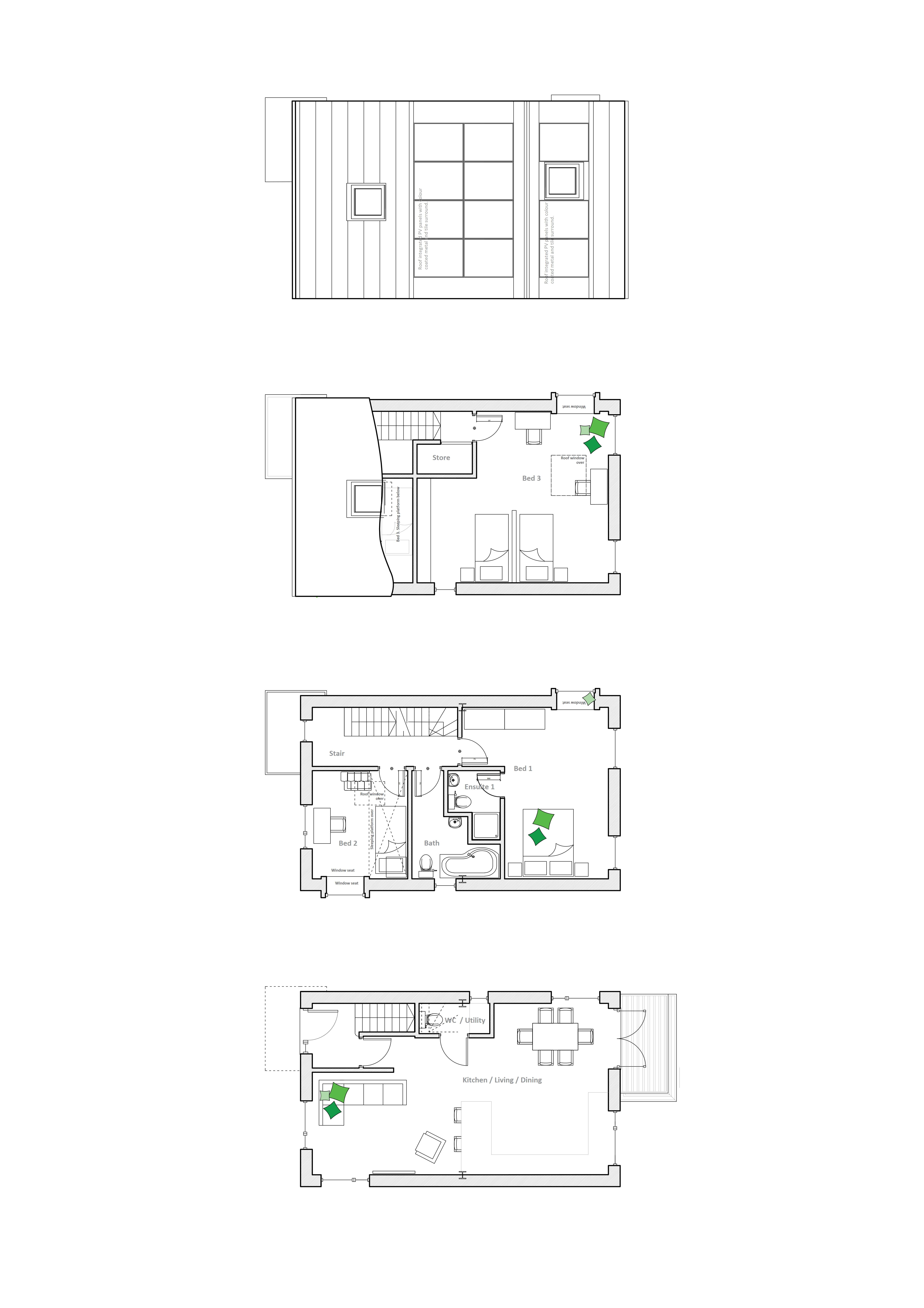
With a shell property, the benefit is that the layout is designed from the start, so there’s plenty of opportunities to create something that works perfectly for you. Unit 2 is a larger 115m², property, with space downstairs for a large kitchen / living / dining area plus a separate snug / utility space and can accommodate 3-5 bedrooms on the upper floors, depending on function.
As with all our properties, the building is highly insulated, and an array of PV panels will help offset your electricity costs further.
Unit 2 is adjacent to Unit 1 and has 2 parking spaces (one with provision for EV charging) one directly in front and another on the shared access road plus a generous back garden that also has private access to the woodland adjacent. Large picture windows to one side look out towards the Moors, with the rest of the side and rear windows having stunning woodland views.
Ideally, we are looking for Customers for this Unit who can buy the land first and shell second, followed by fit out.
Site Plan








